Via Maria Vittoria, 35, 10123 Torino

+39 0118124144
+011 8124145

info@immobiliarebozzo.it

Appartamento panoramico su due livelli in Borgo Po

Appartamento / Vendita
€ 980.000
Richiedi maggiori informazioni
Strada dei Tadini, 71, Torino, TO, Italia
9 locali
4 bagni
356 m²
1 piano
1 garage

Caratteristiche immobile

All’interno di una villa quadrifamiliare degli anni ’60, in un contesto residenziale riservato e immerso nel verde, appartamento su due livelli fuori terra ideale per chi desidera vivere nella quiete senza rinunciare alla vicinanza al centro città.

L’abitazione si distingue per le generose metrature e per una distribuzione degli spazi razionale e funzionale. Il primo piano ospita un’importante zona giorno composta da un doppio salone angolare con camino, caratterizzato da grandi finestre che garantiscono luminosità e accesso diretto a un ampio terrazzo panoramico con splendida vista sulle Alpi, sulla Mole Antonelliana e sulla città di Torino. Completano la zona giorno una sala da pranzo e una cucina abitabile con balcone di servizio.

Sempre al primo livello si sviluppa la zona notte, composta da una camera padronale con armadi a muro, cabina armadi e bagno en suite, due ulteriori camere da letto – di cui una con balcone – e un secondo bagno completo. I disimpegni, arricchiti da armadiature su misura, contribuiscono a ottimizzare gli spazi.

Il secondo piano mansardato, collegato internamente, offre ulteriori ambienti versatili: un soggiorno con balcone, due camere da letto, due bagni e ampi disimpegni in parte armadiati, ideali come zona indipendente per ospiti o area dedicata alla famiglia.

Le caratteristiche architettoniche tipiche dell’epoca di costruzione conferiscono all’immobile ambienti ampi e luminosi, con interessanti potenzialità di personalizzazione e valorizzazione. Una soluzione adatta sia a famiglie numerose sia a chi è alla ricerca di una residenza di rappresentanza, rara per metratura e contesto, in una delle zone più apprezzate di Torino.

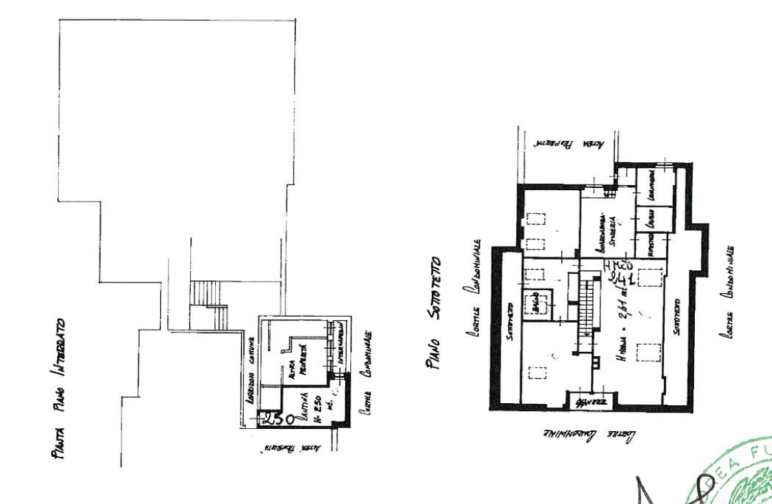
Completano la proprietà uno spazio verde ad uso esclusivo, due posti auto coperti all’interno di un’autorimessa con portone automatico, una cantina al piano interrato e una porzione dell’ex locale portineria, attualmente adibita a deposito. È inoltre disponibile, con acquisto separato, un box auto singolo (2,10 m x 5,80 m) all’interno del complesso, al prezzo di € 50.000.

Altre opzioni simili